Грохоты
Грохот инерционный ГИС-63
Грохот инерционный ГИС-63 предназначен для разделения по крупности сыпучих материалов с объёмной массой насыпного груза не более 1,8 т/м при угле наклона просеивающей поверхности 10-25 градусов на операциях сухого (с поверхностной влагой материала не более 5%) грохочения щебня, гравия, песка и других неметаллорудных строительных материалов крупностью кусков питания до 200 мм.
Применение
- Горнодобывающая промышленность— сортировка руд, угля, отсевов дробления и других полезных ископаемых.
- Производство стройматериалов— разделение на фракции щебня, гравия, песка и песчано-гравийных смесей.
- Перерабатывающая отрасль— классификация различных сыпучих материалов с насыпной плотностью до 1,8 т/м³.
- Обезвоживание— может использоваться для обезвоживания обогащённых углей и промытых руд.
Технические характеристики
|
Наименование показателей |
Значение |
|
Размер просеивающей поверхности, мм Ширина Длина |
2000 6000 |
|
Полезная площадь просеивающей поверхности, м |
12* |
|
Наибольший размер куска исходного материала, мм |
200 |
|
Амплитуда (полуразмах) колебаний короба, мм |
от 3,0 до 4,5 |
|
Производительность м3/час* |
45…250 |
|
Частота колебаний, I/с |
16,2 |
|
Угол наклона просеивающей поверхности, градус |
10...25 |
|
Число ярусов сит, шт. |
3 |
|
Номинальная мощность двигателя, кВт |
22 |
|
Габаритные размеры колеблющейся части грохота, мм Длина Ширина Высота |
6700 2800 1560 |
|
Масса колеблющейся части грохота, т (без ЗИП) |
7,7 |
* Ориентировочная производительность грохота при сухой сортировке гравия влажностью 3-4%.
*производительность зависит от материала, влажности, угла наклона грохота и размера сеток и является индивидуальной
Содержание фракции нижнего класса в исходном материале – 60%, содержание в нижнем классе зерен меньше половины размера отверстий – 50%:
- по граничной крупности 40 мм на верхней просеивающей поверхности, при угле наклона 15°;
- по граничной крупности 70 мм на верхней просеивающей поверхности, при угле наклона 15°.

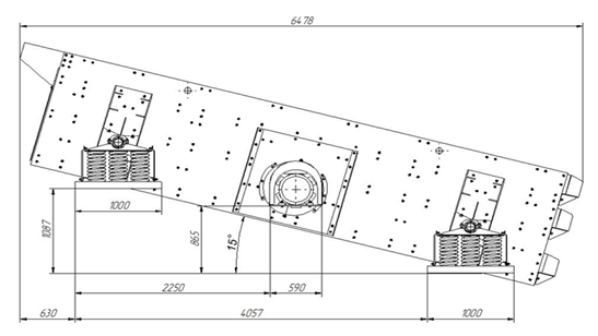
Грохот состоит из короба поз. 1, виброузла поз. 2, пружинных опор поз. 3, привода поз. 4 с кожухом и просеивающей поверхности поз. 5.
Грохот изготавливается в опорном исполнении с правым или левым расположением привода (по ходу движения материала) и комплектуется ситами согласно договору поставки.

Короб представляет собой сборную конструкцию из боковин поз. 1, которые связаны между собой виброузлом поз. 2, рамами поз. 3, загрузочным поз. 4 и выходными поз. 5 лотками, при помощи высокопрочных болтов.
На коробе установлены кронштейны подвески грохота поз. 6 и кожухи поз. 7, поз. 8.
Труба виброузла поз. 2, поперечные балки рам поз. 3 и загрузочный лоток поз. 3 могут быть футерованы резиновыми накладками согласно договору поставки.

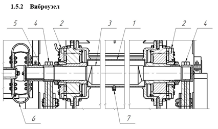
Виброузел состоит из корпуса поз. 1 закрепленного на коробе, рис. 2, совместно с двумя подшипниковыми опорами поз. 2. Подвижная часть виброузла состоит из вала поз. 3 с закрепленными на нём дебалансами поз. 4. Со стороны привода на вал установлена полумуфта поз. 4 с лепестковой муфтой поз. 5 для передачи момента от привода. Поводки лепестковой муфты выполнены из транспортерной ленты.

Опоры пружинные состоят из опоры нижней поз. 2, на которую установлены цилиндрические пружины поз. 3 и опора верхняя поз. 1, опирающаяся на эти пружины и зафиксированная относительно основания опоры нижней поз. 2 стабилизаторами поз. 4.

Привод состоит из электродвигателя поз. 1, установленного на плиту поз. 2. На валу двигателя установлена полумуфта поз. 3, которая соединяется лепестками поз. 4 с полумуфтой виброузла поз. 5. Вращающие части привода и лепестковая муфта ограждены кожухом поз. 6, устанавливаемом на плите поз. 2.

В качестве просеивающей поверхности могут быть применены сита различной конструкции. Каждое сито может быть составным по длине просеивающей поверхности, либо цельным. Просеивающие сетки поз. 1 притягиваются к ребрам рамы грохота при помощи уголков поз. 5 и скоб* поз. 4 с гайками и шайбами.
Устройство и работа
Под действием центробежной силы инерции, возникающей при вращении неуравновешенной массы дебалансов на валу вибратора, короб совершает в вертикальной плоскости колебательные движения, близкие к круговым (траектория каждой точки грохота близка к окружности).
Материал поступает на загрузочный лоток грохота и благодаря наклонной (под углом 10-25°) установке и колебаниям короба движется по верхнему ситу к разгрузке. Часть материала меньше размера ячейки просеивается и поступает на нижнее сито и движется к разгрузке и так далее. Просеянный через отверстия нижнего сита материал поступает в воронку подрешетного продукта.
Скорость перемещения материала зависит от угла наклона просеивающих поверхностей. При увеличении угла наклона скорость движения материала увеличивается, однако эффективность грохочения снижается. При уменьшении угла наклона скорость движения материала уменьшается, но несколько улучшается эффективность грохочения.

